AD
● 멋진 세상 속 네트워크_ 문정묵, 최진희, 이행우, 서승연, 김희균 교수의 공간디자인 칼럼, 교육의 혁신적인 변화를 시도하는 상명대학교 디자인대학
문정묵 상명대학교 디자인대학 교수
살아남는 종은 가장 강한 종(種)도 아니고 가장 똑똑한 종(種)도 아니다. 그것은 변화에 가장 민감한 종(種)이다...
<찰스 다윈 (Charles R Darwin)>
미래에 생존할 수 있는 인재는 결국 세상의 변화에 가장 빠르게 적응하는 인재일 것이다.
우리 사회는 현재, 대학과 같은 고등교육에 대하여 기존의 고정적인 지식의 단순한 전달과 획득이 아닌 새로운 지식을 창안할 수 있는 능력을 지닌 신 인재를 요구하고 있다. 이는 통찰적 사고를 통해 광범위한 지식을 연계하며 새로운 지식을 생산하는 능력이라 할 수 있고 이를 통해 문제를 발견하고 해결하는 새로운 방식을 의미한다.
교육의 혁신은 교육 방식의 변화를 통해 가능하며 이를 능동적으로 수용할 수 있는 새로운 교육공간을 요구하고 있다. 기존에 진행해왔던 교육은 한 공간 안에 교육자와 학습자가 상호 주시하는, 교육자 중심의 일방향적 교육으로서 단순한 지식 전달을 위한 공간 형태를 필요로 했다. 그러나 최근의 학습자 중심의 교육은 여러 학습자가 그룹을 이루며 한 공간에 모여 의견을 주고받고 각자의 지식과 경험을 공유하며 새로운 지식을 창안 할 수 있는 공간의 형태를 필요로 하고 있다. 특히, 창의적 사고를 최고 가치로 생각하고 이에 따른 교육을 실현하고 있는 디자인 교육 분야에 있어서는 새로운 교육과 그것을 가능하게 하는 공간적 스토리가 절실히 필요한 실정이다.
상명대학교 디자인대학은 이러한 교육의 변화에 신속히 대응하고자 디자인 교육의 혁신적인 변화를 시도하고 있다. 전공 간의 다양한 사고와 지식을 융합하여 시사성 있는 사건에 대하여 새로운 문제 해결의 방안을 창안하는 오픈 스튜디오(Open Studio) 제도나, 전공 간의 경계를 허물며 다학제적 사고로 진행하는 융합 전공(연계 전공) 및 융합 교과목, 시대적 요구에 따라 새로운 주제를 찾아 다양한 전공이 참여하는 우분투 사업<국제디자인 융합 워크숍(Ubuntu Design Convergence Workshop), 국제디자인 융합심포지엄(Ubuntu Design Convergence Symposium)> 등 학문의 경계를 넘어 새로운 사회가 요구하는 신학문을 창출하는 교육 시스템을 바탕으로 다가오는 미래가 요구하는 인재를 양성하고 있다.
이를 위해서는 교수와 학생 사이의 보이지 않는 심리적 경계를 허물고 공간적 한계를 극복하며 학생이나 교수가 다양한 매체를 통하여 교육에 참여하는 인프라 조성이 필요하고 이를 가능하게 하는 다양한 교육 미디어의 확충이 필요하다. 또한 이를 바탕으로 학생 사이의 토론 중심의 학습 행태를 만들 수 있는 교육 공간이 절실하다고 할 수 있다.
상명대학교 디자인대학은 디자인대학관 1층의 4개 교육 공간을 대상으로 새로운 창의교육을 자리매김할 수 있는 공간을 조성하였다. 이는 다양한 교육매체를 사용하고 교수뿐만 아니라 학생 상호 간의 지식 전달이 가능하며 궁극적으로는 다양한 형태의 토론을 통하여 새로운 지식을 창안해 내는 창의혁신 공간을 의미하는 것이다.
D.101호는 ‘디자인놀이터’라는 이름으로 명명되었으며 디자인의 본질이 놀이(play)의 개념과 다르지 않다는 것을 보여주고 있다. ‘디자인놀이터’ 공간은 바닥에 그려진 다양한 layout에 따라 시간별로 다르게 가구 배치를 하며 이를 통해 새로운 교육행태를 제시하고 있다. 때로는 강의를 듣는 layout으로 때로는 책상을 앞에 두고 상호 토론할 수 있는 장소로 변신하며 가변성을 최대한 발휘하여 이 공간에서 발생할 수 있는 다양한 교육을 수용하고자 하였다. 특히 계단식으로 조성된 후면 공간은 수업뿐만 아니라 다양한 놀이와 휴식이 가능하도록 조성되어 있다. 디자인학부 1학년을 중심으로 실기수업과 토론 수업을 진행되며 매주 화요일 오후 시작되는 화요릴레이 세미나를 개최할 수 있도록 확정성을 강조하였다.
D.102호 ‘디자인GOGO場’은 소수 학생의 수업이 이루어지거나 12명 미만의 회의나 토론식 수업이 진행된다. 이름에서도 알 수 있듯이 디자인을 지속적으로 실행(GO)시키기 위한 공간으로 지속적으로 디자인 창출 에너지가 발산되도록 라임색으로 공간 전체가 채워진 공간이다. 학생들은 이 공간에서 라임색 컬러 칩을 명기한 벽면을 통해 인지할 수 있다.
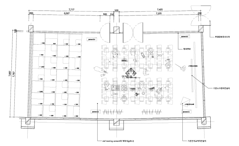
D.104,105호 ‘디자인스토밍’에서는 테이블의 배치를 상호 바라볼 수 있는 ㅁ 자 형태로 조성하여 열띤 토론이 가능하도록 하였다. 동시에 테이블 배치의 변화를 통해 일반 강의도 가능하도록 하였다.
109호 ‘디자인모임터’는 지식의 전달이라는 과거의 교육에서 벗어나 상호 토론하고 그것을 종합할 수 있는 교육요구를 반영하였다. 디자인대학 6개 전공의 학생이 모여 6개의 그룹을 형성하며 이를 수용할 수 있는 6개의 투명한 집을 조성하였다. 이를 기반으로 종합된 지식을 중앙공간에서 발표할 수 있도록 공간을 만들었다. 또한 6개 전공의 학생이 모여 영상을 중심으로 소통하는 디자이너의 특성을 반영할 수 있는 영상 시스템을 제공하고 있다.
각 층 학생휴게실은 ‘디자인多方’으로 조성했다. 사람이 모이고 토론을 통해 다양한 방법 (多方)을 찾아내어 새로운 사회를 구현하려는 최근의 디자인 방법론을 수용하였다. 모든 강의실은 공간과 시간의 다양한 조합을 기초로 제공되고 이를 위하여 예약제로 이용된다. >>문정묵, 최진희, 이행우, 서승연, 김희균_ 상명대학교 디자인대학 교수, 기사 출처_ 데일리 에이앤뉴스_ Daily AN NEWS ‧ ANN TV(ANN NEWS CENTER) 제공
안정원(비비안안 VIVIAN AN) 에이앤뉴스 발행인 겸 대표이사, 한양대학교 실내건축디자인학과 겸임교수
기사 제공_ 에이앤뉴스그룹(데일리에이앤뉴스_ 건설경제건축디자인문화예술종합미디어뉴스‧에이앤앤티브이_건축디자인건설미디어뉴스채널 ‧ 에이앤프레스_ 건설지‧건설백서‧건설스토리북전문출판사)
상명대학교 디자인대학 창의융복합공간
공간디자인 및 설계: 문정묵, 최진희, 이행우 / 사인디자인 서승연 / 스토리텔링 김희균
시공: 주) 고미건축, 바닥재: 셀프 레벨링 시멘트 위 에폭시도장 / 합판마루, 벽재: 자작나무 합판 위 무광 래커 / 구로철판 위 에폭시 도장 / 후면 채색 강화유리 / 석고보드 위 비닐계 수성 페인트, 천장재: 석고보드 위 비닐계 수성 페인트 / 노출 천장 위 비닐계 수성 페인트
[저작권자(c) YTN 무단전재, 재배포 및 AI 데이터 활용 금지]
문정묵 상명대학교 디자인대학 교수
살아남는 종은 가장 강한 종(種)도 아니고 가장 똑똑한 종(種)도 아니다. 그것은 변화에 가장 민감한 종(種)이다...
<찰스 다윈 (Charles R Darwin)>
미래에 생존할 수 있는 인재는 결국 세상의 변화에 가장 빠르게 적응하는 인재일 것이다.
우리 사회는 현재, 대학과 같은 고등교육에 대하여 기존의 고정적인 지식의 단순한 전달과 획득이 아닌 새로운 지식을 창안할 수 있는 능력을 지닌 신 인재를 요구하고 있다. 이는 통찰적 사고를 통해 광범위한 지식을 연계하며 새로운 지식을 생산하는 능력이라 할 수 있고 이를 통해 문제를 발견하고 해결하는 새로운 방식을 의미한다.
교육의 혁신은 교육 방식의 변화를 통해 가능하며 이를 능동적으로 수용할 수 있는 새로운 교육공간을 요구하고 있다. 기존에 진행해왔던 교육은 한 공간 안에 교육자와 학습자가 상호 주시하는, 교육자 중심의 일방향적 교육으로서 단순한 지식 전달을 위한 공간 형태를 필요로 했다. 그러나 최근의 학습자 중심의 교육은 여러 학습자가 그룹을 이루며 한 공간에 모여 의견을 주고받고 각자의 지식과 경험을 공유하며 새로운 지식을 창안 할 수 있는 공간의 형태를 필요로 하고 있다. 특히, 창의적 사고를 최고 가치로 생각하고 이에 따른 교육을 실현하고 있는 디자인 교육 분야에 있어서는 새로운 교육과 그것을 가능하게 하는 공간적 스토리가 절실히 필요한 실정이다.
상명대학교 디자인대학은 이러한 교육의 변화에 신속히 대응하고자 디자인 교육의 혁신적인 변화를 시도하고 있다. 전공 간의 다양한 사고와 지식을 융합하여 시사성 있는 사건에 대하여 새로운 문제 해결의 방안을 창안하는 오픈 스튜디오(Open Studio) 제도나, 전공 간의 경계를 허물며 다학제적 사고로 진행하는 융합 전공(연계 전공) 및 융합 교과목, 시대적 요구에 따라 새로운 주제를 찾아 다양한 전공이 참여하는 우분투 사업<국제디자인 융합 워크숍(Ubuntu Design Convergence Workshop), 국제디자인 융합심포지엄(Ubuntu Design Convergence Symposium)> 등 학문의 경계를 넘어 새로운 사회가 요구하는 신학문을 창출하는 교육 시스템을 바탕으로 다가오는 미래가 요구하는 인재를 양성하고 있다.
이를 위해서는 교수와 학생 사이의 보이지 않는 심리적 경계를 허물고 공간적 한계를 극복하며 학생이나 교수가 다양한 매체를 통하여 교육에 참여하는 인프라 조성이 필요하고 이를 가능하게 하는 다양한 교육 미디어의 확충이 필요하다. 또한 이를 바탕으로 학생 사이의 토론 중심의 학습 행태를 만들 수 있는 교육 공간이 절실하다고 할 수 있다.
상명대학교 디자인대학은 디자인대학관 1층의 4개 교육 공간을 대상으로 새로운 창의교육을 자리매김할 수 있는 공간을 조성하였다. 이는 다양한 교육매체를 사용하고 교수뿐만 아니라 학생 상호 간의 지식 전달이 가능하며 궁극적으로는 다양한 형태의 토론을 통하여 새로운 지식을 창안해 내는 창의혁신 공간을 의미하는 것이다.
D.101호는 ‘디자인놀이터’라는 이름으로 명명되었으며 디자인의 본질이 놀이(play)의 개념과 다르지 않다는 것을 보여주고 있다. ‘디자인놀이터’ 공간은 바닥에 그려진 다양한 layout에 따라 시간별로 다르게 가구 배치를 하며 이를 통해 새로운 교육행태를 제시하고 있다. 때로는 강의를 듣는 layout으로 때로는 책상을 앞에 두고 상호 토론할 수 있는 장소로 변신하며 가변성을 최대한 발휘하여 이 공간에서 발생할 수 있는 다양한 교육을 수용하고자 하였다. 특히 계단식으로 조성된 후면 공간은 수업뿐만 아니라 다양한 놀이와 휴식이 가능하도록 조성되어 있다. 디자인학부 1학년을 중심으로 실기수업과 토론 수업을 진행되며 매주 화요일 오후 시작되는 화요릴레이 세미나를 개최할 수 있도록 확정성을 강조하였다.
D.102호 ‘디자인GOGO場’은 소수 학생의 수업이 이루어지거나 12명 미만의 회의나 토론식 수업이 진행된다. 이름에서도 알 수 있듯이 디자인을 지속적으로 실행(GO)시키기 위한 공간으로 지속적으로 디자인 창출 에너지가 발산되도록 라임색으로 공간 전체가 채워진 공간이다. 학생들은 이 공간에서 라임색 컬러 칩을 명기한 벽면을 통해 인지할 수 있다.
D.104,105호 ‘디자인스토밍’에서는 테이블의 배치를 상호 바라볼 수 있는 ㅁ 자 형태로 조성하여 열띤 토론이 가능하도록 하였다. 동시에 테이블 배치의 변화를 통해 일반 강의도 가능하도록 하였다.
109호 ‘디자인모임터’는 지식의 전달이라는 과거의 교육에서 벗어나 상호 토론하고 그것을 종합할 수 있는 교육요구를 반영하였다. 디자인대학 6개 전공의 학생이 모여 6개의 그룹을 형성하며 이를 수용할 수 있는 6개의 투명한 집을 조성하였다. 이를 기반으로 종합된 지식을 중앙공간에서 발표할 수 있도록 공간을 만들었다. 또한 6개 전공의 학생이 모여 영상을 중심으로 소통하는 디자이너의 특성을 반영할 수 있는 영상 시스템을 제공하고 있다.
각 층 학생휴게실은 ‘디자인多方’으로 조성했다. 사람이 모이고 토론을 통해 다양한 방법 (多方)을 찾아내어 새로운 사회를 구현하려는 최근의 디자인 방법론을 수용하였다. 모든 강의실은 공간과 시간의 다양한 조합을 기초로 제공되고 이를 위하여 예약제로 이용된다. >>문정묵, 최진희, 이행우, 서승연, 김희균_ 상명대학교 디자인대학 교수, 기사 출처_ 데일리 에이앤뉴스_ Daily AN NEWS ‧ ANN TV(ANN NEWS CENTER) 제공
안정원(비비안안 VIVIAN AN) 에이앤뉴스 발행인 겸 대표이사, 한양대학교 실내건축디자인학과 겸임교수
기사 제공_ 에이앤뉴스그룹(데일리에이앤뉴스_ 건설경제건축디자인문화예술종합미디어뉴스‧에이앤앤티브이_건축디자인건설미디어뉴스채널 ‧ 에이앤프레스_ 건설지‧건설백서‧건설스토리북전문출판사)
상명대학교 디자인대학 창의융복합공간
공간디자인 및 설계: 문정묵, 최진희, 이행우 / 사인디자인 서승연 / 스토리텔링 김희균
시공: 주) 고미건축, 바닥재: 셀프 레벨링 시멘트 위 에폭시도장 / 합판마루, 벽재: 자작나무 합판 위 무광 래커 / 구로철판 위 에폭시 도장 / 후면 채색 강화유리 / 석고보드 위 비닐계 수성 페인트, 천장재: 석고보드 위 비닐계 수성 페인트 / 노출 천장 위 비닐계 수성 페인트
[저작권자(c) YTN 무단전재, 재배포 및 AI 데이터 활용 금지]
AD










